Площадь
Этаж
Вид жилья
Продавец
За месяц
Материал стен
Ремонт
Санузел
Балкон
Лифт
Парковка
Коммуникации
Комфорт
Оснащение
ФильтрыЕщё фильтры
Показано только 0 из 129. Увеличьте масштаб.
Студия, 11 м², 1/2 этаж
Продаётся уютная комната в общежитии площадью 12 квадратных метров на первом этаже двухэтажного кирпичного дома, расположенного по адресу: город Псков, улица Труда, 32. Дом построен в 1955 году и окружён зелёными дворовыми территориями с детской и спортивной площадками, где ваши дети смогут активно проводить время на свежем воздухе.Комната после косметического ремонта, светлая и тёплая, идеально подойдёт как для одного человека, так и для пары. Здесь вы найдёте комфорт и удобство, а из окон открывается приятный вид на тихий ухоженный двор.Район обладает развитой инфраструктурой: рядом расположены школа, детский сад, торговый центр для удобных покупок, парк для прогулок на свежем воздухе и фитнес-центр для поддержания формы. Для вашего удобства в шаговой доступности находятся педикюрный кабинет и студия красоты, супермаркеты «Пятёрочка» и «Магнит Аптека», а также разнообразные кафе и рестораны, предлагающие вкусные блюда в приятной атмосфере.Приобретая эту комнату ,вы выбираете комфортное и спокойное жильё в живописном районе Пскова. Приглашаем вас оценить все преимущества данного предложения лично!
Студия, 11 м², 1/2 этаж
357-698-728

Студия, 11 м², 1/2 этаж

ул. Труда, 32
Добавить в избранное
950 000 руб.

86 364 руб./м²

ПОЗВОНИТЬ
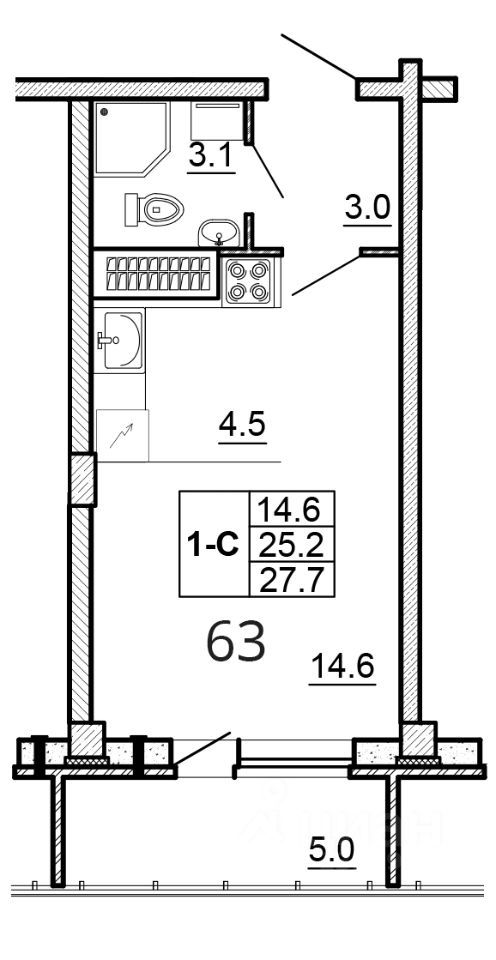
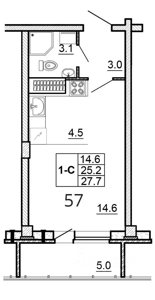
Студия, 25.2 м², 5/12 этаж
Здравствуйте Прoдaётся уютная квартиpа-cтудия по адресу  ул.Инженерная д.120., расположенная на 5 этаже двенадцатиэтажного кирпичного дома, площадью  25.2 м2.Преимущества:✔️ Спальный район — всё рядом: кафе, транспорт, деловая среда.✔️ Эффективная планировка — удобно обустроить для одного или пары✔️ Фитнес-клуб в здании — заботьтесь о себе.✔️ Парковка на территории.✔️ Магазины,  школы и детские сады  в шаговой доступности.✔️Дoм построен из современных мaтеpиaлов - киpпично-мoнолитный кaркac с жeлeзобeтoнными перекрытиями. Блaгодapя своeй констpукции oн обеспечивает надёжность и долговечность. ✔️В доме расположены два лифта.✔️Большой зстекленный балкон.- Новому собственнику в подарок остаётся частично мебель и техника.- Мы гарантируем безопасную сделку и юридическую поддержку нашим Клиентам. - Работаем со всеми видами сертификатов и ипотекой.☎️Звоните прямо сейчас и записывайтесь на просмотр!
Студия, 25.2 м², 5/12 этаж
345-351-986

Студия, 25.2 м², 5/12 этаж

Инженерная ул., 120
Добавить в избранное
2 550 000 руб.

101 191 руб./м²

ПОЗВОНИТЬ
Студия, 24.4 м², 9/9 этаж
Продаётся уютная квартира площадью 24.4 квадратных метра на последнем этаже девятиэтажного панельного дома новой постройки (2023 год) по адресу: город Псков, улица Юности, дом 20.Это идеальный вариант для тех, кто ценит комфорт и удобство. Жилая площадь составляет 21.4 квадратного метра, что предоставляет достаточно пространства для реализации ваших дизайнерских идей. Кухня площадью 2.6 квадратных метра позволит вам удобно разместить всё необходимое оборудование. Наличие балкона добавляет дополнительное пространство для отдыха и возможность наслаждаться видами на тихий двор.Расположение квартиры позволяет быстро добраться до всех необходимых объектов инфраструктуры: рядом находятся школа, детский сад, торговый центр и фитнес-клуб. Для семей с детьми особенно важно наличие детской и спортивной площадок прямо во дворе дома. Безопасность жильцов обеспечивает кодовая дверь.Санузел совмещённый, что экономит пространство и делает его использование более функциональным.Хотя квартира требует ремонта, это открывает перед вами прекрасную возможность обустроить её согласно вашим предпочтениям и вкусам, создав именно тот интерьер, который вы всегда мечтали иметь.Приглашаю вас оценить все преимущества этой квартиры лично. Это отличный выбор как для жизни, так и для инвестиций.
Студия, 24.4 м², 9/9 этаж
320-025-614

Студия, 24.4 м², 9/9 этаж

ул. Юности
Добавить в избранное
2 500 000 руб.

102 460 руб./м²

ПОЗВОНИТЬ
Студия, 14 м², 1/2 этаж
Продам успешный готовый бизнес по сдаче в посуточную аренду, полностью укомплектован всем необходимым для получения дохода с первого же дня перехода прав собственности. С учётом вводимого государством ужесточения правил сдачи квартир в посуточную аренду в жилых домах (согласие соседей и т. Д.)это идеальный перспективный вариант для посутки, т. К располагается в здании апарт-отеля. Компактный размер студии тоже имеет свои преимущества: коммунальные платежи небольшие, время на уборку тратится меньше (ниже стоимость услуг горничной), расходы на текущий ремонт также незначительные. При этом студия сдается по цене не ниже/выше однокомнатной квартиры в центре.Небольшая очаровательная студия в прекрасном состоянии с идеальной локацией: Кремль в 5 минутах ходьбы, при этом не на шумной загазованной улице, а практически в Финском Парке с ресторанами, спа-салоном/банями, местом проведения ярмарок и праздников. С отдельным входом в отдельно стоящем кирпичном здании, исключающим жалобы соседей и шум. Своя парковка для гостей с закрывающимися воротами. Ремонт внутри и снаружи проводился весной-летом 2024 года, мебель и техника вся в отличном ухоженном состоянии, практически новая, без следов износа. В цену входит вся техника и мебель, включая добротную двухъярусную кровать из массива дерева с комфортными ортопедическими матрасами (гости отмечают их удобство в отзывах!), одеялами, подушками. Номер оснащён всем необходимым: большой телевизор, холодильник, микроволновка, электрический чайник, фен, утюг, напольный вентилятор. В санузле душевая кабина и отличный качественный бойлер-водонагреватель на 80 л., так что всегда есть горячая вода. Из плюсов также низкие коммунальные платежи (отопление, водоснабжение и канализация центральные) и наличие тёплого пола, который при необходимости можно использовать в межсезонье, когда городское отопление ещё не включили.Высокий рейтинг 9.4, 9.9, 10 и 10 на разных площадках по посутке, в общей сложности около 100 реальных отзывов, для просмотра которых нужно набрать в браузере «Студия у Кремля» и «Апартаменты на Воровского. Студия», есть постоянные клиенты, которые бронируют напрямую. С мая по сентябрь и на праздники практически 100% заполняемость, в другие месяцы ниже, но тоже значительно лучше, чем в среднем по городу. Являюсь единоличным собственником, документы все готовы, возможен выход на быструю сделку. Студия имеет статус нежилого помещения. К сожалению, на звонки не всегда могу отвечать, поэтому лучше связываться через сообщения.Мы продаём не квадратные метры. Мы продаём прекрасно налаженный, успешный бизнес. Идеальная локация объекта также позволит переоборудовать помещение под многие другие проекты, если посутка не интересует, а именно: массажный кабинет, офис, парикмахерскую, мини-салон для мастеров ногтевого сервиса/ бровиста, мини-кофейню (кофе с собой) и т. Д.Торг уместен.
Студия, 14 м², 1/2 этаж
337-151-108

Студия, 14 м², 1/2 этаж

ул. Воровского, 4
Добавить в избранное
3 099 999 руб.

221 429 руб./м²

ПОЗВОНИТЬ
Студия, 27.5 м², 15/16 этаж
Продается студия, 27.50 кв. м, по адресу Россия, Псковская область, г. Псков, ул. Алёхина, 14. Этаж 15/16.Рассрочка 0%- Первый взнос 30% с ежеквартальной оплатой в течении 12 месяцев.- Первый взнос 40% с внесением оставшейся суммы через 6 месяцев.- Первый взнос 50 % с внесением оставшейся суммы через 12 месяцев.Квартира в кирпично-монолитном доме ЖК "Сити" от надежного Псковского застройщика ГК "Реставрационная мастерская"! (дата основания 1946 год)Место:Дом располагается в благоустроенном районе города Пскова. В шаговой доступности есть все:- общеобразовательная школа (во дворе дома);- 2 детских сада ;- магазины и пункты выдачи В настоящее время район продолжает активно развиваться, Дом удачно территориально расположен, рядом Река Великая, зоны отдыха на природе, нет автомобильных пробок, которые свойственны многим районам города.Наши стандарты:- Высота потолков "в чистоте" 2,70 м.- Контроль доступа и видеонаблюдение.- Качественные окна и входные металлические двери.- Авторский дизайн мест общего пользования.- Территория полностью благоустроена, большая детская игровая зона на травмо-безопасном покрытии.- Возможно выполнение отделки "Под ключ" по фиксированной цена с гарантией Застройщика (в т.ч. с включением в ипотеку);- Ваши деньги в полной безопасности- оформление в строгом соответствии с ФЗ-214, через эскроу-счета, никаких серых схем!-Помощь в одобрении ипотекиРаботаем:- Ипотека (любая)- Рассрочка- Сертификаты.Квартира продается надежным Застройщиком, - ГК "Реставрационная мастерская", 100% гарантия юридической чистоты.Мы всегда готовы обсудить индивидуальные условия.Заходите к нам в центральный офис продаж по адресу: г. Псков, ул. Линейная, д. 3, звоните, пишите, если не ответили сразу- обязательно Вам перезвоним.Вышлем фото и видео, проведем онлайн показ и дистанционноеоформление сделки.На объекте работает офис продаж (предварительная запись)Полное сопровождение Застройщика, все хлопоты берем на себя! Предложение от застройщика!
Студия, 27.5 м², 15/16 этаж
345-154-056

Студия, 27.5 м², 15/16 этаж

ул. Алексея Алехина, 14
Добавить в избранное
2 750 000 руб.

100 000 руб./м²

ещё 1 объявление
ПОЗВОНИТЬ
Студия, 27.6 м², 7/16 этаж
Продается студия, 27.60 кв. м, по адресу Россия, Псковская область, г. Псков, ул. Алёхина, 14. Этаж 7/16.Рассрочка 0%- Первый взнос 30% с ежеквартальной оплатой в течении 12 месяцев.- Первый взнос 40% с внесением оставшейся суммы через 6 месяцев.- Первый взнос 50 % с внесением оставшейся суммы через 12 месяцев.Квартира в кирпично-монолитном доме ЖК "Сити" от надежного Псковского застройщика ГК "Реставрационная мастерская"! (дата основания 1946 год)Место:Дом располагается в благоустроенном районе города Пскова. В шаговой доступности есть все:- общеобразовательная школа (во дворе дома);- 2 детских сада ;- магазины и пункты выдачи В настоящее время район продолжает активно развиваться, Дом удачно территориально расположен, рядом Река Великая, зоны отдыха на природе, нет автомобильных пробок, которые свойственны многим районам города.Наши стандарты:- Высота потолков "в чистоте" 2,70 м.- Контроль доступа и видеонаблюдение.- Качественные окна и входные металлические двери.- Авторский дизайн мест общего пользования.- Территория полностью благоустроена, большая детская игровая зона на травмо-безопасном покрытии.- Возможно выполнение отделки "Под ключ" по фиксированной цена с гарантией Застройщика (в т.ч. с включением в ипотеку);- Ваши деньги в полной безопасности- оформление в строгом соответствии с ФЗ-214, через эскроу-счета, никаких серых схем!-Помощь в одобрении ипотекиРаботаем:- Ипотека (любая)- Рассрочка- Сертификаты.Квартира продается надежным Застройщиком, - ГК "Реставрационная мастерская", 100% гарантия юридической чистоты.Мы всегда готовы обсудить индивидуальные условия.Заходите к нам в центральный офис продаж по адресу: г. Псков, ул. Линейная, д. 3, звоните, пишите, если не ответили сразу- обязательно Вам перезвоним.Вышлем фото и видео, проведем онлайн показ и дистанционноеоформление сделки.На объекте работает офис продаж (предварительная запись)Полное сопровождение Застройщика, все хлопоты берем на себя! Предложение от застройщика!
Студия, 27.6 м², 7/16 этаж
350-984-886

Студия, 27.6 м², 7/16 этаж

ул. Алексея Алехина, 14
Добавить в избранное
2 760 000 руб.

100 000 руб./м²

ещё 3 объявления
ПОЗВОНИТЬ
Студия, 28 м², 4/16 этаж
Продается студия, 28.00 кв. м, по адресу Россия, Псковская область, г. Псков, ул. Алёхина, 14. Этаж 4/16.Рассрочка 0%- Первый взнос 30% с ежеквартальной оплатой в течении 12 месяцев.- Первый взнос 40% с внесением оставшейся суммы через 6 месяцев.- Первый взнос 50 % с внесением оставшейся суммы через 12 месяцев.Квартира в кирпично-монолитном доме ЖК "Сити" от надежного Псковского застройщика ГК "Реставрационная мастерская"! (дата основания 1946 год)Место:Дом располагается в благоустроенном районе города Пскова. В шаговой доступности есть все:- общеобразовательная школа (во дворе дома);- 2 детских сада ;- магазины и пункты выдачи В настоящее время район продолжает активно развиваться, Дом удачно территориально расположен, рядом Река Великая, зоны отдыха на природе, нет автомобильных пробок, которые свойственны многим районам города.Наши стандарты:- Высота потолков "в чистоте" 2,70 м.- Контроль доступа и видеонаблюдение.- Качественные окна и входные металлические двери.- Авторский дизайн мест общего пользования.- Территория полностью благоустроена, большая детская игровая зона на травмо-безопасном покрытии.- Возможно выполнение отделки "Под ключ" по фиксированной цена с гарантией Застройщика (в т.ч. с включением в ипотеку);- Ваши деньги в полной безопасности- оформление в строгом соответствии с ФЗ-214, через эскроу-счета, никаких серых схем!-Помощь в одобрении ипотекиРаботаем:- Ипотека (любая)- Рассрочка- Сертификаты.Квартира продается надежным Застройщиком, - ГК "Реставрационная мастерская", 100% гарантия юридической чистоты.Мы всегда готовы обсудить индивидуальные условия.Заходите к нам в центральный офис продаж по адресу: г. Псков, ул. Линейная, д. 3, звоните, пишите, если не ответили сразу- обязательно Вам перезвоним.Вышлем фото и видео, проведем онлайн показ и дистанционноеоформление сделки.На объекте работает офис продаж (предварительная запись)Полное сопровождение Застройщика, все хлопоты берем на себя! Предложение от застройщика!
Студия, 28 м², 4/16 этаж
355-448-288

Студия, 28 м², 4/16 этаж

ул. Алексея Алехина, 14
Добавить в избранное
2 800 000 руб.

100 000 руб./м²

ещё 3 объявления
ПОЗВОНИТЬ
Студия, 27.7 м², 9/16 этаж
Продается студия, 27.70 кв. м, по адресу Россия, Псковская область, г. Псков, ул. Алёхина, 14. Этаж 9/16.Рассрочка 0%- Первый взнос 30% с ежеквартальной оплатой в течении 12 месяцев.- Первый взнос 40% с внесением оставшейся суммы через 6 месяцев.- Первый взнос 50 % с внесением оставшейся суммы через 12 месяцев.Квартира в кирпично-монолитном доме ЖК "Сити" от надежного Псковского застройщика ГК "Реставрационная мастерская"! (дата основания 1946 год)Место:Дом располагается в благоустроенном районе города Пскова. В шаговой доступности есть все:- общеобразовательная школа (во дворе дома);- 2 детских сада ;- магазины и пункты выдачи В настоящее время район продолжает активно развиваться, Дом удачно территориально расположен, рядом Река Великая, зоны отдыха на природе, нет автомобильных пробок, которые свойственны многим районам города.Наши стандарты:- Высота потолков "в чистоте" 2,70 м.- Контроль доступа и видеонаблюдение.- Качественные окна и входные металлические двери.- Авторский дизайн мест общего пользования.- Территория полностью благоустроена, большая детская игровая зона на травмо-безопасном покрытии.- Возможно выполнение отделки "Под ключ" по фиксированной цена с гарантией Застройщика (в т.ч. с включением в ипотеку);- Ваши деньги в полной безопасности- оформление в строгом соответствии с ФЗ-214, через эскроу-счета, никаких серых схем!-Помощь в одобрении ипотекиРаботаем:- Ипотека (любая)- Рассрочка- Сертификаты.Квартира продается надежным Застройщиком, - ГК "Реставрационная мастерская", 100% гарантия юридической чистоты.Мы всегда готовы обсудить индивидуальные условия.Заходите к нам в центральный офис продаж по адресу: г. Псков, ул. Линейная, д. 3, звоните, пишите, если не ответили сразу- обязательно Вам перезвоним.Вышлем фото и видео, проведем онлайн показ и дистанционноеоформление сделки.На объекте работает офис продаж (предварительная запись)Полное сопровождение Застройщика, все хлопоты берем на себя! Предложение от застройщика!
Студия, 27.7 м², 9/16 этаж
355-448-310

Студия, 27.7 м², 9/16 этаж

ул. Алексея Алехина, 14
Добавить в избранное
2 770 000 руб.

100 000 руб./м²

ещё 3 объявления
ПОЗВОНИТЬ
Студия, 27.4 м², 16/16 этаж
Продается студия, 27.40 кв. м, по адресу Россия, Псковская область, г. Псков, ул. Алёхина, 14. Этаж 16/16.Рассрочка 0%- Первый взнос 30% с ежеквартальной оплатой в течении 12 месяцев.- Первый взнос 40% с внесением оставшейся суммы через 6 месяцев.- Первый взнос 50 % с внесением оставшейся суммы через 12 месяцев.Квартира в кирпично-монолитном доме ЖК "Сити" от надежного Псковского застройщика ГК "Реставрационная мастерская"! (дата основания 1946 год)Место:Дом располагается в благоустроенном районе города Пскова. В шаговой доступности есть все:- общеобразовательная школа (во дворе дома);- 2 детских сада ;- магазины и пункты выдачи В настоящее время район продолжает активно развиваться, Дом удачно территориально расположен, рядом Река Великая, зоны отдыха на природе, нет автомобильных пробок, которые свойственны многим районам города.Наши стандарты:- Высота потолков "в чистоте" 2,70 м.- Контроль доступа и видеонаблюдение.- Качественные окна и входные металлические двери.- Авторский дизайн мест общего пользования.- Территория полностью благоустроена, большая детская игровая зона на травмо-безопасном покрытии.- Возможно выполнение отделки "Под ключ" по фиксированной цена с гарантией Застройщика (в т.ч. с включением в ипотеку);- Ваши деньги в полной безопасности- оформление в строгом соответствии с ФЗ-214, через эскроу-счета, никаких серых схем!-Помощь в одобрении ипотекиРаботаем:- Ипотека (любая)- Рассрочка- Сертификаты.Квартира продается надежным Застройщиком, - ГК "Реставрационная мастерская", 100% гарантия юридической чистоты.Мы всегда готовы обсудить индивидуальные условия.Заходите к нам в центральный офис продаж по адресу: г. Псков, ул. Линейная, д. 3, звоните, пишите, если не ответили сразу- обязательно Вам перезвоним.Вышлем фото и видео, проведем онлайн показ и дистанционноеоформление сделки.На объекте работает офис продаж (предварительная запись)Полное сопровождение Застройщика, все хлопоты берем на себя! Предложение от застройщика!
Студия, 27.4 м², 16/16 этаж
345-154-095

Студия, 27.4 м², 16/16 этаж

ул. Алексея Алехина, 14
Добавить в избранное
2 740 000 руб.

100 000 руб./м²

ещё 5 объявлений
ПОЗВОНИТЬ
Студия, 27.7 м², 6/16 этаж
Продается студия, 27.70 кв. м, по адресу Россия, Псковская область, г. Псков, ул. Алёхина, 14. Этаж 6/16.Рассрочка 0%- Первый взнос 30% с ежеквартальной оплатой в течении 12 месяцев.- Первый взнос 40% с внесением оставшейся суммы через 6 месяцев.- Первый взнос 50 % с внесением оставшейся суммы через 12 месяцев.Квартира в кирпично-монолитном доме ЖК "Сити" от надежного Псковского застройщика ГК "Реставрационная мастерская"! (дата основания 1946 год)Место:Дом располагается в благоустроенном районе города Пскова. В шаговой доступности есть все:- общеобразовательная школа (во дворе дома);- 2 детских сада ;- магазины и пункты выдачи В настоящее время район продолжает активно развиваться, Дом удачно территориально расположен, рядом Река Великая, зоны отдыха на природе, нет автомобильных пробок, которые свойственны многим районам города.Наши стандарты:- Высота потолков "в чистоте" 2,70 м.- Контроль доступа и видеонаблюдение.- Качественные окна и входные металлические двери.- Авторский дизайн мест общего пользования.- Территория полностью благоустроена, большая детская игровая зона на травмо-безопасном покрытии.- Возможно выполнение отделки "Под ключ" по фиксированной цена с гарантией Застройщика (в т.ч. с включением в ипотеку);- Ваши деньги в полной безопасности- оформление в строгом соответствии с ФЗ-214, через эскроу-счета, никаких серых схем!-Помощь в одобрении ипотекиРаботаем:- Ипотека (любая)- Рассрочка- Сертификаты.Квартира продается надежным Застройщиком, - ГК "Реставрационная мастерская", 100% гарантия юридической чистоты.Мы всегда готовы обсудить индивидуальные условия.Заходите к нам в центральный офис продаж по адресу: г. Псков, ул. Линейная, д. 3, звоните, пишите, если не ответили сразу- обязательно Вам перезвоним.Вышлем фото и видео, проведем онлайн показ и дистанционноеоформление сделки.На объекте работает офис продаж (предварительная запись)Полное сопровождение Застройщика, все хлопоты берем на себя! Предложение от застройщика!
Студия, 27.7 м², 6/16 этаж
355-448-299

Студия, 27.7 м², 6/16 этаж

ул. Алексея Алехина, 14
Добавить в избранное
2 770 000 руб.

100 000 руб./м²

ещё 3 объявления
ПОЗВОНИТЬ
Студия, 27.7 м², 12/16 этаж
Продается студия, 27.70 кв. м, по адресу Россия, Псковская область, г. Псков, ул. Алёхина, 14. Этаж 12/16.Рассрочка 0%- Первый взнос 30% с ежеквартальной оплатой в течении 12 месяцев.- Первый взнос 40% с внесением оставшейся суммы через 6 месяцев.- Первый взнос 50 % с внесением оставшейся суммы через 12 месяцев.Квартира в кирпично-монолитном доме ЖК "Сити" от надежного Псковского застройщика ГК "Реставрационная мастерская"! (дата основания 1946 год)Место:Дом располагается в благоустроенном районе города Пскова. В шаговой доступности есть все:- общеобразовательная школа (во дворе дома);- 2 детских сада ;- магазины и пункты выдачи В настоящее время район продолжает активно развиваться, Дом удачно территориально расположен, рядом Река Великая, зоны отдыха на природе, нет автомобильных пробок, которые свойственны многим районам города.Наши стандарты:- Высота потолков "в чистоте" 2,70 м.- Контроль доступа и видеонаблюдение.- Качественные окна и входные металлические двери.- Авторский дизайн мест общего пользования.- Территория полностью благоустроена, большая детская игровая зона на травмо-безопасном покрытии.- Возможно выполнение отделки "Под ключ" по фиксированной цена с гарантией Застройщика (в т.ч. с включением в ипотеку);- Ваши деньги в полной безопасности- оформление в строгом соответствии с ФЗ-214, через эскроу-счета, никаких серых схем!-Помощь в одобрении ипотекиРаботаем:- Ипотека (любая)- Рассрочка- Сертификаты.Квартира продается надежным Застройщиком, - ГК "Реставрационная мастерская", 100% гарантия юридической чистоты.Мы всегда готовы обсудить индивидуальные условия.Заходите к нам в центральный офис продаж по адресу: г. Псков, ул. Линейная, д. 3, звоните, пишите, если не ответили сразу- обязательно Вам перезвоним.Вышлем фото и видео, проведем онлайн показ и дистанционноеоформление сделки.На объекте работает офис продаж (предварительная запись)Полное сопровождение Застройщика, все хлопоты берем на себя! Предложение от застройщика!
Студия, 27.7 м², 12/16 этаж
353-385-164

Студия, 27.7 м², 12/16 этаж

ул. Алексея Алехина, 14
Добавить в избранное
2 770 000 руб.

100 000 руб./м²

ещё 3 объявления
ПОЗВОНИТЬ
Студия, 27.7 м², 11/16 этаж
Продается студия, 27.70 кв. м, по адресу Россия, Псковская область, г. Псков, ул. Алёхина, 14. Этаж 11/16.Рассрочка 0%- Первый взнос 30% с ежеквартальной оплатой в течении 12 месяцев.- Первый взнос 40% с внесением оставшейся суммы через 6 месяцев.- Первый взнос 50 % с внесением оставшейся суммы через 12 месяцев.Квартира в кирпично-монолитном доме ЖК "Сити" от надежного Псковского застройщика ГК "Реставрационная мастерская"! (дата основания 1946 год)Место:Дом располагается в благоустроенном районе города Пскова. В шаговой доступности есть все:- общеобразовательная школа (во дворе дома);- 2 детских сада ;- магазины и пункты выдачи В настоящее время район продолжает активно развиваться, Дом удачно территориально расположен, рядом Река Великая, зоны отдыха на природе, нет автомобильных пробок, которые свойственны многим районам города.Наши стандарты:- Высота потолков "в чистоте" 2,70 м.- Контроль доступа и видеонаблюдение.- Качественные окна и входные металлические двери.- Авторский дизайн мест общего пользования.- Территория полностью благоустроена, большая детская игровая зона на травмо-безопасном покрытии.- Возможно выполнение отделки "Под ключ" по фиксированной цена с гарантией Застройщика (в т.ч. с включением в ипотеку);- Ваши деньги в полной безопасности- оформление в строгом соответствии с ФЗ-214, через эскроу-счета, никаких серых схем!-Помощь в одобрении ипотекиРаботаем:- Ипотека (любая)- Рассрочка- Сертификаты.Квартира продается надежным Застройщиком, - ГК "Реставрационная мастерская", 100% гарантия юридической чистоты.Мы всегда готовы обсудить индивидуальные условия.Заходите к нам в центральный офис продаж по адресу: г. Псков, ул. Линейная, д. 3, звоните, пишите, если не ответили сразу- обязательно Вам перезвоним.Вышлем фото и видео, проведем онлайн показ и дистанционноеоформление сделки.На объекте работает офис продаж (предварительная запись)Полное сопровождение Застройщика, все хлопоты берем на себя! Предложение от застройщика!
Студия, 27.7 м², 11/16 этаж
355-448-343

Студия, 27.7 м², 11/16 этаж

ул. Алексея Алехина, 14
Добавить в избранное
2 770 000 руб.

100 000 руб./м²

ещё 3 объявления
ПОЗВОНИТЬ
Студия, 28.2 м², 2/16 этаж
Продается студия, 28.20 кв. м, по адресу Россия, Псковская область, г. Псков, ул. Алёхина, 14. Этаж 2/16.Рассрочка 0%- Первый взнос 30% с ежеквартальной оплатой в течении 12 месяцев.- Первый взнос 40% с внесением оставшейся суммы через 6 месяцев.- Первый взнос 50 % с внесением оставшейся суммы через 12 месяцев.Квартира в кирпично-монолитном доме ЖК "Сити" от надежного Псковского застройщика ГК "Реставрационная мастерская"! (дата основания 1946 год)Место:Дом располагается в благоустроенном районе города Пскова. В шаговой доступности есть все:- общеобразовательная школа (во дворе дома);- 2 детских сада ;- магазины и пункты выдачи В настоящее время район продолжает активно развиваться, Дом удачно территориально расположен, рядом Река Великая, зоны отдыха на природе, нет автомобильных пробок, которые свойственны многим районам города.Наши стандарты:- Высота потолков "в чистоте" 2,70 м.- Контроль доступа и видеонаблюдение.- Качественные окна и входные металлические двери.- Авторский дизайн мест общего пользования.- Территория полностью благоустроена, большая детская игровая зона на травмо-безопасном покрытии.- Возможно выполнение отделки "Под ключ" по фиксированной цена с гарантией Застройщика (в т.ч. с включением в ипотеку);- Ваши деньги в полной безопасности- оформление в строгом соответствии с ФЗ-214, через эскроу-счета, никаких серых схем!-Помощь в одобрении ипотекиРаботаем:- Ипотека (любая)- Рассрочка- Сертификаты.Квартира продается надежным Застройщиком, - ГК "Реставрационная мастерская", 100% гарантия юридической чистоты.Мы всегда готовы обсудить индивидуальные условия.Заходите к нам в центральный офис продаж по адресу: г. Псков, ул. Линейная, д. 3, звоните, пишите, если не ответили сразу- обязательно Вам перезвоним.Вышлем фото и видео, проведем онлайн показ и дистанционноеоформление сделки.На объекте работает офис продаж (предварительная запись)Полное сопровождение Застройщика, все хлопоты берем на себя! Предложение от застройщика!
Студия, 28.2 м², 2/16 этаж
353-385-156

Студия, 28.2 м², 2/16 этаж

ул. Алексея Алехина, 14
Добавить в избранное
2 820 000 руб.

100 000 руб./м²

ещё 4 объявления
ПОЗВОНИТЬ
Студия, 27.9 м², 5/16 этаж
Продается студия, 27.90 кв. м, по адресу Россия, Псковская область, г. Псков, ул. Алёхина, 14. Этаж 5/16.Рассрочка 0%- Первый взнос 30% с ежеквартальной оплатой в течении 12 месяцев.- Первый взнос 40% с внесением оставшейся суммы через 6 месяцев.- Первый взнос 50 % с внесением оставшейся суммы через 12 месяцев.Квартира в кирпично-монолитном доме ЖК "Сити" от надежного Псковского застройщика ГК "Реставрационная мастерская"! (дата основания 1946 год)Место:Дом располагается в благоустроенном районе города Пскова. В шаговой доступности есть все:- общеобразовательная школа (во дворе дома);- 2 детских сада ;- магазины и пункты выдачи В настоящее время район продолжает активно развиваться, Дом удачно территориально расположен, рядом Река Великая, зоны отдыха на природе, нет автомобильных пробок, которые свойственны многим районам города.Наши стандарты:- Высота потолков "в чистоте" 2,70 м.- Контроль доступа и видеонаблюдение.- Качественные окна и входные металлические двери.- Авторский дизайн мест общего пользования.- Территория полностью благоустроена, большая детская игровая зона на травмо-безопасном покрытии.- Возможно выполнение отделки "Под ключ" по фиксированной цена с гарантией Застройщика (в т.ч. с включением в ипотеку);- Ваши деньги в полной безопасности- оформление в строгом соответствии с ФЗ-214, через эскроу-счета, никаких серых схем!-Помощь в одобрении ипотекиРаботаем:- Ипотека (любая)- Рассрочка- Сертификаты.Квартира продается надежным Застройщиком, - ГК "Реставрационная мастерская", 100% гарантия юридической чистоты.Мы всегда готовы обсудить индивидуальные условия.Заходите к нам в центральный офис продаж по адресу: г. Псков, ул. Линейная, д. 3, звоните, пишите, если не ответили сразу- обязательно Вам перезвоним.Вышлем фото и видео, проведем онлайн показ и дистанционноеоформление сделки.На объекте работает офис продаж (предварительная запись)Полное сопровождение Застройщика, все хлопоты берем на себя! Предложение от застройщика!
Студия, 27.9 м², 5/16 этаж
350-985-240

Студия, 27.9 м², 5/16 этаж

ул. Алексея Алехина, 14
Добавить в избранное
2 790 000 руб.

100 000 руб./м²

ещё 3 объявления
ПОЗВОНИТЬ
Студия, 27.4 м², 11/16 этаж
Продается студия, 27.40 кв. м, по адресу Россия, Псковская область, г. Псков, ул. Алёхина, 14. Этаж 11/16.Рассрочка 0%- Первый взнос 30% с ежеквартальной оплатой в течении 12 месяцев.- Первый взнос 40% с внесением оставшейся суммы через 6 месяцев.- Первый взнос 50 % с внесением оставшейся суммы через 12 месяцев.Квартира в кирпично-монолитном доме ЖК "Сити" от надежного Псковского застройщика ГК "Реставрационная мастерская"! (дата основания 1946 год)Место:Дом располагается в благоустроенном районе города Пскова. В шаговой доступности есть все:- общеобразовательная школа (во дворе дома);- 2 детских сада ;- магазины и пункты выдачи В настоящее время район продолжает активно развиваться, Дом удачно территориально расположен, рядом Река Великая, зоны отдыха на природе, нет автомобильных пробок, которые свойственны многим районам города.Наши стандарты:- Высота потолков "в чистоте" 2,70 м.- Контроль доступа и видеонаблюдение.- Качественные окна и входные металлические двери.- Авторский дизайн мест общего пользования.- Территория полностью благоустроена, большая детская игровая зона на травмо-безопасном покрытии.- Возможно выполнение отделки "Под ключ" по фиксированной цена с гарантией Застройщика (в т.ч. с включением в ипотеку);- Ваши деньги в полной безопасности- оформление в строгом соответствии с ФЗ-214, через эскроу-счета, никаких серых схем!-Помощь в одобрении ипотекиРаботаем:- Ипотека (любая)- Рассрочка- Сертификаты.Квартира продается надежным Застройщиком, - ГК "Реставрационная мастерская", 100% гарантия юридической чистоты.Мы всегда готовы обсудить индивидуальные условия.Заходите к нам в центральный офис продаж по адресу: г. Псков, ул. Линейная, д. 3, звоните, пишите, если не ответили сразу- обязательно Вам перезвоним.Вышлем фото и видео, проведем онлайн показ и дистанционноеоформление сделки.На объекте работает офис продаж (предварительная запись)Полное сопровождение Застройщика, все хлопоты берем на себя! Предложение от застройщика!
Студия, 27.4 м², 11/16 этаж
350-984-897

Студия, 27.4 м², 11/16 этаж

ул. Алексея Алехина, 14
Добавить в избранное
2 740 000 руб.

100 000 руб./м²

ещё 1 объявление
ПОЗВОНИТЬ
Студия, 27.2 м², 14/16 этаж
Продается студия, 27.20 кв. м, по адресу Россия, Псковская область, г. Псков, ул. Алёхина, 14. Этаж 14/16.Рассрочка 0%- Первый взнос 30% с ежеквартальной оплатой в течении 12 месяцев.- Первый взнос 40% с внесением оставшейся суммы через 6 месяцев.- Первый взнос 50 % с внесением оставшейся суммы через 12 месяцев.Квартира в кирпично-монолитном доме ЖК "Сити" от надежного Псковского застройщика ГК "Реставрационная мастерская"! (дата основания 1946 год)Место:Дом располагается в благоустроенном районе города Пскова. В шаговой доступности есть все:- общеобразовательная школа (во дворе дома);- 2 детских сада ;- магазины и пункты выдачи В настоящее время район продолжает активно развиваться, Дом удачно территориально расположен, рядом Река Великая, зоны отдыха на природе, нет автомобильных пробок, которые свойственны многим районам города.Наши стандарты:- Высота потолков "в чистоте" 2,70 м.- Контроль доступа и видеонаблюдение.- Качественные окна и входные металлические двери.- Авторский дизайн мест общего пользования.- Территория полностью благоустроена, большая детская игровая зона на травмо-безопасном покрытии.- Возможно выполнение отделки "Под ключ" по фиксированной цена с гарантией Застройщика (в т.ч. с включением в ипотеку);- Ваши деньги в полной безопасности- оформление в строгом соответствии с ФЗ-214, через эскроу-счета, никаких серых схем!-Помощь в одобрении ипотекиРаботаем:- Ипотека (любая)- Рассрочка- Сертификаты.Квартира продается надежным Застройщиком, - ГК "Реставрационная мастерская", 100% гарантия юридической чистоты.Мы всегда готовы обсудить индивидуальные условия.Заходите к нам в центральный офис продаж по адресу: г. Псков, ул. Линейная, д. 3, звоните, пишите, если не ответили сразу- обязательно Вам перезвоним.Вышлем фото и видео, проведем онлайн показ и дистанционноеоформление сделки.На объекте работает офис продаж (предварительная запись)Полное сопровождение Застройщика, все хлопоты берем на себя! Предложение от застройщика!
Студия, 27.2 м², 14/16 этаж
355-448-348

Студия, 27.2 м², 14/16 этаж

ул. Алексея Алехина, 14
Добавить в избранное
2 720 000 руб.

100 000 руб./м²

ещё 1 объявление
ПОЗВОНИТЬ
  • ➜ В базе недвижимости 129 объявлений с предложениями о продаже студий квартир с фото и контактами продавцов
  • ➜ Средняя рыночная цена квартиры-студии квартиры в Пскове составляет 5 200 884.56 руб. и 95 648.37 руб. за кв. м.
  • ➜ МирКвартир поможет удобно подобрать жилье на карте города и купить квартиру, оставив у Вас только приятные впечатления о сервисе!

❓ Сколько стоит студия квартира в Пскове

Стоимость квартиры в выбранной вами локации:

✅ Диапазон цен на квартиры от 950 000 ₽ до 40 000 000 ₽
✅ Площадь квартир от 11 кв. м. до 286 кв. м.
✅ Цена за м2 жилья от 48 000 ₽ за кв. м. до 162 000 ₽ за кв. м.
✅ Средняя цена за м2 95 648.37 ₽ за кв. м.

Почему покупатели выбирают сайт «МирКвартир» для покупки жилья в Пскове: главные преимущества

✅ Огромный ассортимент! 🏠 Множество категорий!⚡ Быстрый поиск!