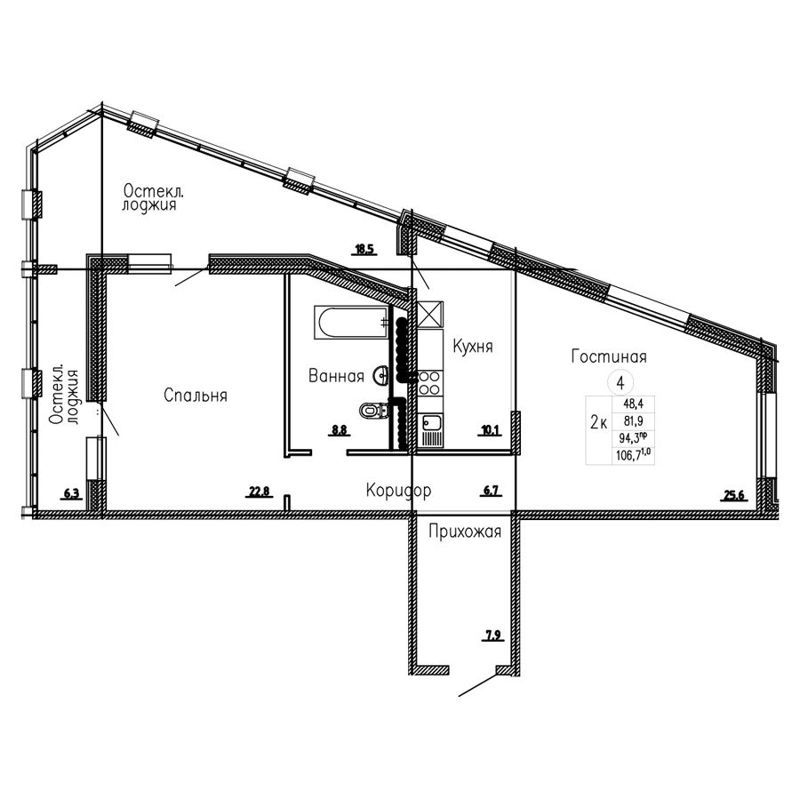
2-комн. квартира, 94.3 м², 8/17 этаж

Избранное
19 331 500руб. 
205 000руб./м²
Следить за ценой
332-303-756Архив
Close
Поделиться в соц. сетях
Скопировать ссылку
РаспечататьПожаловаться
размещено 25.10.24 в 01:33, снято 01.01.26 в 13:06
Продавец:

Домклик

2
комнаты
94.3
м²
Общая площадь
8 из 17
этаж
2027 г.
Год постройки

Черновая

Информация о квартире в новостройке

Раздельный санузел

Комнаты
Площадь
Планировка
санузел раздельный
Этаж
8 из 17
Дом
2027 г.

Источник объявления: Домклик