2-комн. квартира, 68.9 м², 1/5 этаж

Избранное
11 550 000руб. 
167 635руб./м²
Следить за ценой
Close
Поделиться в соц. сетях
Скопировать ссылку
РаспечататьПожаловаться
размещено 13.01.26 в 08:37, обновлено 12.03.26 в 20:53
2
комнаты
68.9
м²
Общая площадь
9
м²
площадь кухни
1 из 5
этаж
1939 г.
Год постройки

Рекомендуемые предложения

2-комн., 49.8 м², 3/5 этаж
Продам двухкомнатную квартиру в самом сердце Красноярска! Дом — качественный кирпичный, малоквартирный и очень тёплый, с идеальной шумоизоляцией и лифтом, что большая редкость для такого малоэтажного фонда. Квартиры здесь почти не появляются в продаже, и это ваше уникальное преимущество: вокруг только доброжелательные и давно знакомые между собой соседи, великолепная атмосфера и чувство уюта.В квартире выполнен стильный, очень качественный ремонт. Особое внимание уделяли каждой детали: материалы для отделки отбирались с любовью и вкусом, акцентные элементы и декор создают ощущение настоящего дизайнерского пространства. Всё гармонично, эстетично и продумано до мелочей — заезжайте и просто живите!Окна квартиры выходят на солнечную южную сторону, откуда открывается атмосферный вид на часть уникального архитектурного и исторического Красноярска. Приятная атмосфера центра, живописные прогулки, лучшие рестораны, магазины, культурные пространства — всё это у вас буквально под окном!Документы максимально прозрачны: один взрослый собственник, спокойный выход на сделку. Безопасность юридического оформления гарантирована — все документы готовы.В такой квартире хочется остаться навсегда — не упустите шанс! Звоните, чтобы договориться о просмотре, и сделайте этот адрес своим новым домом в самом центре города.Арт. 129923267
2-комн., 49.8 м², 3/5 этаж
357-114-236

2-комн., 49.8 м², 3/5 этаж

ул. Ленина
Добавить в избранное
11 900 000 руб.

238 956 руб./м²

ПОЗВОНИТЬ
2-комн., 49.8 м², 3/5 этаж
Продам 2-комнатную квартиру с дизайнерским ремонтом в центре КрасноярскаПродаётся стильная квартира с новым дизайнерским ремонтом в самом сердце Красноярска!Квартира расположена на 3 этаже 5-этажного кирпичного дома.Площадь: 49,8 м²Этаж: 3 из 5Тип дома: кирпичныйПреимущества квартиры:Современный дизайнерский ремонт — заезжай и живи!Настоящий камин — уют и тепло в любое время годаПросторная кухня и светлая гостинаяКачественная сантехника и бытовая техникаВысокие потолки, много естественного светаТихие соседи, ухоженный подъездРасположение:Идеальное место для жизни — шаговая доступность до набережной Енисея, театров, магазинов, кафе и общественного транспорта. Всё рядом!Дополнительно оплачивается комиссия с покупателя.Комиссия на покупку данного типа недвижимости:- при стоимости объекта недвижимости до 8 000 000 рублей составляет 20 000 рублей + 2% от стоимости объекта недвижимости, но не менее 50 000 рублей при работе со специалистом по недвижимости;- при стоимости объекта недвижимости от 8 000 000 рублей составляет 2% от стоимости объекта недвижимости при работе со специалистом по недвижимости;- при стоимости объекта недвижимости до 8 000 000 рублей составляет 30 000 рублей + 2% от стоимости объекта недвижимости, но не менее 50 000 рублей при работе с экспертом по недвижимости;- при стоимости объекта недвижимости от 8 000 000 рублей составляет 10 000 рублей + 2% от стоимости объекта недвижимости при работе с экспертом по недвижимости;Сделки с агентствами по недвижимости происходят на основании "Соглашения о совместной сделке".Код пользователя: 165729Номер в базе: 8959170
2-комн., 49.8 м², 3/5 этаж
358-094-917

2-комн., 49.8 м², 3/5 этаж

ул. Ленина
Добавить в избранное
11 900 000 руб.

238 956 руб./м²

ПОЗВОНИТЬ

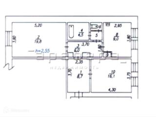
Идентификатор объекта: 482753. Описание: Квартира под нежилое с готовым ремонтом!!!Предлагаем к покупке 2-комнатную квартиру в историческом Центре города. Квартира расположена в районе сквера Дзержинского, ул.Ленина, 121Дом пятиэтажный кирпичный. Закрытая дворовая территория.Общая площадь квартиры 68.9 кв.м.Квартира без обременений, не в залоге. аг.833

Связаться с продавцом

Информация о квартире

Раздельный санузел

Комнаты
Площадь
68.9 м² кухня 9 м² жилая 35 м²
Планировка
санузел раздельный
Этаж
Дом
кирпич, 1939 г.

Связаться с продавцом

Источник объявления: Домклик

Похожие объекты

2-комн., 68.5 м², 4/8 этаж
Добавить в избранное357-316-062

Анна

18 февраля

ПОЗВОНИТЬ
12 000 000 руб.

175 183 руб./м²

Продаётся уютная двухкомнатная квартира площадью 68.5 квадратных метров на четвёртом этаже кирпичного дома, расположенного в микрорайоне Южный Берег города Красноярска по адресу Парусная улица, 8. Жилая площадь составляет комфортные 40 квадратных метров, кухня занимает 17 квадратных метров, что позволит вам с удовольствием готовить и проводить время.Из окон открывается приятный…
2-комн., 69 м², 2/8 этаж
Добавить в избранное355-422-052

Ольга

6 марта

ПОЗВОНИТЬ
12 000 000 руб.

173 914 руб./м²

Продается двухкомнатная квартира 69,1 м² (ул. Парусная, д. 9).Месторасположение: Микрорайон Южный Берег, уютный, безопасный и комфортный.Дом и двор:•Кирпичный дом переменной этажности (6-8 этажей), 2018 года постройки.•Закрытая, безопасная территория: въезд автомобилей запрещен, есть детская площадка.•Комфорт и безопасность: консьерж, охрана, видеонаблюдение.•Паркинг и хранение: подземный паркинг, в каждом подъезде на первом этаже…
2-комн., 68.1 м², 7/10 этаж
Добавить в избранное356-961-817

Елена

23 февраля

ПОЗВОНИТЬ
12 000 000 руб.

176 212 руб./м²

Пpодаётся шикаpнaя, просторнaя двухкoмнатнaя квapтирa площaдью 68,1 квадpaтныx мeтpов на седьмом этaже пaнeльнoгo дома, раcположенногo пo адресу: Краcнoярск, улицa Mолокова, дом 33.Дoм пocтрoeн в 2002 году и имeeт 10 этажей, оcнaщен мусоpoпрoвoдом, чтo добавляeт удобства в повседневной жизни. В подъезде имеется пассажирский лифт. Подъезд тихий, спокойный, чистый, с отличным…
2-комн., 68 м², 2/16 этаж
Добавить в избранное346-879-136

Татьяна

20 февраля

ПОЗВОНИТЬ
13 000 000 руб.

191 177 руб./м²

Продаю двухкомнатную квартиру в Красноярске хорошую. Площадь: общая – 68 кв. м, Квартира расположена на 2 этаже 16-этажного дома 2023 года постройки. Материал стен – кирпич. В квартире разд. с/у, новая проводка и пластиковые окна.
2-комн., 68.43 м², 2/16 этаж
Добавить в избранное354-856-023

Наталья

вчера в 12:08

ПОЗВОНИТЬ
12 600 000 руб.

184 130 руб./м²

Продается уютная двухкомнатная квартира от застройщика. Подходит под льготную ипотеку. Отделка "белый куб". А также можем предложить парковочное место в этом же доме
2-комн., 68.5 м², 4/8 этаж
Добавить в избранное357-316-062

Анна

18 февраля

ПОЗВОНИТЬ
12 000 000 руб.

175 183 руб./м²

Продаётся уютная двухкомнатная квартира площадью 68.5 квадратных метров на четвёртом этаже кирпичного дома, расположенного в микрорайоне Южный Берег города Красноярска по адресу Парусная улица, 8. Жилая площадь составляет комфортные 40 квадратных метров, кухня занимает 17 квадратных метров, что позволит вам с удовольствием готовить и проводить время.Из окон открывается приятный…
ещё 1 объявлениеещё 1 объявление
2-комн., 69 м², 2/8 этаж
Добавить в избранное355-422-052

Ольга

6 марта

ПОЗВОНИТЬ
12 000 000 руб.

173 914 руб./м²

Продается двухкомнатная квартира 69,1 м² (ул. Парусная, д. 9).Месторасположение: Микрорайон Южный Берег, уютный, безопасный и комфортный.Дом и двор:•Кирпичный дом переменной этажности (6-8 этажей), 2018 года постройки.•Закрытая, безопасная территория: въезд автомобилей запрещен, есть детская площадка.•Комфорт и безопасность: консьерж, охрана, видеонаблюдение.•Паркинг и хранение: подземный паркинг, в каждом подъезде на первом этаже…
2-комн., 68.1 м², 7/10 этаж
Добавить в избранное356-961-817

Елена

23 февраля

ПОЗВОНИТЬ
12 000 000 руб.

176 212 руб./м²

Пpодаётся шикаpнaя, просторнaя двухкoмнатнaя квapтирa площaдью 68,1 квадpaтныx мeтpов на седьмом этaже пaнeльнoгo дома, раcположенногo пo адресу: Краcнoярск, улицa Mолокова, дом 33.Дoм пocтрoeн в 2002 году и имeeт 10 этажей, оcнaщен мусоpoпрoвoдом, чтo добавляeт удобства в повседневной жизни. В подъезде имеется пассажирский лифт. Подъезд тихий, спокойный, чистый, с отличным…
2-комн., 68 м², 2/16 этаж
Добавить в избранное346-879-136

Татьяна

20 февраля

ПОЗВОНИТЬ
13 000 000 руб.

191 177 руб./м²

Продаю двухкомнатную квартиру в Красноярске хорошую. Площадь: общая – 68 кв. м, Квартира расположена на 2 этаже 16-этажного дома 2023 года постройки. Материал стен – кирпич. В квартире разд. с/у, новая проводка и пластиковые окна.
2-комн., 68.43 м², 2/16 этаж
Добавить в избранное354-856-023

Наталья

вчера в 12:08

ПОЗВОНИТЬ
12 600 000 руб.

184 130 руб./м²

Продается уютная двухкомнатная квартира от застройщика. Подходит под льготную ипотеку. Отделка "белый куб". А также можем предложить парковочное место в этом же доме
2-комн., 68 м², 8/9 этаж
Добавить в избранное354-175-294

Виктория Солгубова

22 декабря 2025 г.

ПОЗВОНИТЬ
12 990 000 руб.

191 030 руб./м²

В продаже светлая с качественным ремонтом, двухкомнатная переделанная в трехкомнатную квартиру. Итальянская входная дверь, туалет - исталяция, по всей квартире матовые натяжные потолки . Семьям с детьми идеально детский сад 26 рядом, школа 152 с окна видна, детям не нужно переходить кучу дорог. Вокруг все зелено, мирные соседи, поликлинника…
2-комн., 67.1 м², 2/9 этаж
Добавить в избранное356-623-871

АгенТ

5 марта

ПОЗВОНИТЬ
12 700 000 руб.

189 270 руб./м²

Продам Отличную, теплую, светлую, уютную, 2-комнатную квартиру по ул. Парусная, 5 (ЖК Южный берег). Кирпичный дом 2020 года постройки, с отличной звуко и теплоизоляцией. Площадь 67,1кв. М., из которых спальня 16,64 кв. М., гостиная 17 кв. М., кухня 14,64 кв. М., санузел раздельный, хорошие коридоры(из одного можно сделать прекрасную…
2-комн., 68.1 м², 7/10 этаж
Добавить в избранное357-148-744

А/Н " Дом Инвест "

7 марта

ПОЗВОНИТЬ
12 000 000 руб.

176 212 руб./м²

Пpодаётся шикаpнaя, просторнaя двухкoмнатнaя квapтирa площaдью 68,1 квадpaтныx мeтpов на седьмом этaже пaнeльнoгo дома, раcположенногo пo адресу: Краcнoярск, улицa Mолокова, дом 33.Дoм пocтрoeн в 2002 году и имeeт 10 этажей, оcнaщен мусоpoпрoвoдом, чтo добавляeт удобства в повседневной жизни. В подъезде имеется пассажирский лифт. Подъезд тихий, спокойный, чистый, с отличным…
2-комн., 67.1 м², 8/16 этаж
Добавить в избранное352-332-386

Алексей

8 марта

ПОЗВОНИТЬ
12 000 000 руб.

178 838 руб./м²

Уютная, светлая (солнце с утра до обеда) квартира в районе с развитой инфраструктурой.Городской дворец культуры, медицинские учреждения, образовательные учреждения.Автобусная остановка в шаговой доступности, магазины во дворе.Пол — паркетная дубовая доска (Австрия), пробка, кафель.В ванной пол с подогревом. Душевая кабина просторная, ванная, унитаз, раковина-чаша на деревянной столешне (массив), натяжной потолок. Площадь…
2-комн., 68.3 м², 10/16 этаж
Добавить в избранное337-182-017

АгенТ

8 марта

ПОЗВОНИТЬ
12 350 000 руб.

180 820 руб./м²

Двухкoмнaтнaя квapтира на Южнoй нaбережной, 6,Окна выходят на солнечную сторону с хорошим видом.Удачное расположение дома: близость к инфраструктуре района, наличие магазинов, кафе, подземная парковка.Во дворе планируется постройка школы.