2-комн. квартира, 49 м², 2/2 этаж

Избранное
7 500 000руб. 
153 062руб./м²
Следить за ценой
Close
Поделиться в соц. сетях
Скопировать ссылку
РаспечататьПожаловаться
размещено 21.01.26 в 19:44, обновлено 01.03.26 в 16:33
2
комнаты
49
м²
Общая площадь
7
м²
площадь кухни
2 из 2
этаж
1944 г.
Год постройки

Рекомендуемые предложения

2-комн., 47.7 м², 3/5 этаж
Продается двухкомнатная квартира в самой удачной локации города.Дом окружен с одной стороны прекрасным парком им. Суркова с детской площадкой, огромным количеством магазинов (Мечта, ЖизньМарт, Монетка, Пятерочка, Spar), через дорогу ГКБ№1, Центральная стоматология, большое количество детских садов (213, 310, 270, 260), школ (147, 80, 98, 153). Прекрасный тихий двор, с хорошей детской площадкой и большим количеством парковочных мест. В пешей доступности Медицинский колледж, Министерство социальных отношений, U-мед, ЮУГК, сквер им. Тукая, женская консультация, ТРЦ Урал.Очень опрятный недавно отремонтированный подъезд, с замененными стеклопакетами.У квартиры отличная планировка с комнатами на разные стороны и раздельным сан.узлом.Частично выполнен косметический ремонт, так же выведена система отопления из стен.Один взрослый собственник, обременений по объекту нет. Показ по предварительной записи.ID объекта в нашей базе: 2082
2-комн., 47.7 м², 3/5 этаж
347-263-210

2-комн., 47.7 м², 3/5 этаж

ул. Курчатова, 24
Добавить в избранное
5 000 000 руб.

104 822 руб./м²

ПОЗВОНИТЬ
2-комн., 47.8 м², 5/5 этаж
Продаётся двухкомнатная квартира площадью 47.8 квадратных метров на пятом этаже пятиэтажного дома. Кирпичный, капитальный дом содержится в хорошем состоянии. Тихий, чистый подъезд, хорошие соседи.Жилая площадь составляет 30.3 квадратных метра. Комнаты разведены на разные стороны: выходят на восток и запад. Кухня площадью 5.5 квадратных метров. Раздельный санузел. В квартире достаточно места для хранения: встроенный шкаф в коридоре, кладовка (потенциальная гардеробная) в спальне, атресоли в коридоре и на кухне.В жилых комнатах - натяжной потолок, ламинат по всему полу. Туалет, ванная и фартук кухни - плитка. Балкон застеклен, но не утеплен.Из окон открывается приятный вид на двор, где также расположена новая детская площадка. Рядом расположены: детский сад, школа, техникум. В пяти минутах ходьбы расположен фитнес-зал и бассейн "Рекком". Есть сквер через дорогу.Хорошая транспортная развязка: с остановки "Доватора" можно уехать в любую часть города.Один собственник. Прописанных - нет.
2-комн., 47.8 м², 5/5 этаж
355-422-117

2-комн., 47.8 м², 5/5 этаж

ул. Энгельса, 54
Добавить в избранное
5 200 000 руб.

108 787 руб./м²

ПОЗВОНИТЬ
2-комн., 75.1 м², 5/18 этаж
Арт. 127173025 Продаётся просторная 2‑комнатная квартира в ЖК «Новоград» (центр Челябинска).Адрес: г. Челябинск, ул. Доватора, д. 46а.Общая площадь: 75.1 м² (без учёта лоджии).Жилая площадь: 41,09 м² (комнаты: 20,69 м² и 20,4 м²).Кухня: 10,7 м².Санузел: 5,2 м².Лоджия: 3,5 м² (застеклённая).Высота потолков: 3,1 м.Основные характеристики:этаж: 5‑й из 18;дом: монолитно‑кирпичный, 2022 года постройки;планировка: 2 изолированные комнаты;состояние: черновая отделка;окна: выходят на запад‑восток (на улицы Доватора, Воровского, Курчатова);дополнительные удобства: грузовой и пассажирский лифты, круглосуточный консьерж.Инфраструктура в шаговой доступности:детские сады: № 260 (прямо у дома);школы: № 67 и № 110;транспорт: остановка общественного транспорта (1 мин.);магазины: сетевые супермаркеты и локальные магазины (3–5 мин.);медицина: больница, аптеки (5 мин.);финансы: отделения банков (5–7 мин.);досуг и быт: парки, кафе, салоны красоты, фитнес‑клубы (в пределах 10 мин. пешком).Территория и парковка:детская площадка перед детским садом (вид из окон);дом расположен на второй линии от проезжей части (тихий двор);открытая и подземная парковка;собственная управляющая компания.Преимущества локации:центр города — максимальная доступность всех городских сервисов;благоприятная экология двора (удаленность от основных дорог);панорамные виды из окон;современная инфраструктура жилого комплекса.Условия сделки:собственник: 1 взрослый;регистрация: никто не прописан;обременения: отсутствуют;документы: полностью готовы к сделке;возможна ипотека.Готов ответить на вопросы и организовать просмотр в удобное для вас время!Торг уместен.
2-комн., 75.1 м², 5/18 этаж
354-021-045

2-комн., 75.1 м², 5/18 этаж

ул. Доватора, 46
Добавить в избранное
9 500 000 руб.

126 499 руб./м²

ПОЗВОНИТЬ

Предлагаем купить уникальную квартиру в самом центре города Челябинска - на площади Революции. Заходим в уютный "питерский" дворик с улицы Воровского и попадаем на закрытую территорию, за шлагбаумом, и шум города остается где-то далеко... Никаких проблем с парковкой - огромный двор в Вашем распоряжении! Места есть всегда. Другие квартиры в этом доме почти все переведены в нежилой фонд и используются как офисы и магазины. Вечером и ночью никаких лишних звуков. И стены капитальные. Соседи - жители этого дома творческие люди. Уже в подъезде своя неповторимая атмосфера: выставка картин и изделий ручной работы. Всего две жилые квартиры на этаже. Тишина и спокойствие.В квартире нас встречает качественный ремонт, чистота и свежесть. Напольное покрытие из натуральной лиственницы на кухне и комнатах. Пластиковые новые окна с тройным стеклопакетом. В ванной комнате кафель, душевая кабина. Особенность этого дома: отопление центральное, вода только холодная, установлен водонагреватель. Хорошая экономия на платежах за горячую воду. Газа нет, электроплита. На кухне выполненная под индивидуальный заказ кухня производства фабрики "Линда".В комнате вместительный встроенный шкаф во всю стену с несколькими системами хранения вещей.Квартира продается со всей встроенной бытовой техникой и всей мебелью.Квартиру ремонтировали для себя, все сделано с душой, продается по причине переезда в другой город.Документы: собственник один, совершеннолетний, в квартире никто не прописан, нет долгов по коммунальным платежам. Есть обременение Альфабанка, готовы погасить остаток своими силами перед сделкой при необходимости.Показы в любое время по предварительной договоренности. Звоните, приходите на просмотр!Арт. 128946679

Связаться с продавцом

САМОЛЕТ ПЛЮС/ИП Чернядьева ОА166 объявлений

ПОЗВОНИТЬ

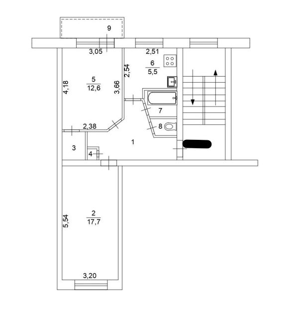
Информация о квартире

Ремонт

Раздельный санузел

Комнаты
Площадь
49 м² кухня 7 м² жилая 33 м²
Планировка
санузел раздельный
Этаж
Дом
кирпич, 1944 г.
Инфраструктура
магазин

Другие квартиры в этом доме

2-комн., 49 м², 2/2 этаж
Предлагаем купить уникальную квартиру в самом центре города Челябинска — на площади Революции.Заходим в уютный «питерский» дворик с улицы Воровского и попадаем на закрытую территорию, за шлагбаумом, и шум города остается где-то далеко…Никаких проблем с парковкой — огромный двор в Вашем распоряжении! Места есть всегда.Другие квартиры в этом доме почти все переведены в нежилой фонд и используются как офисы и магазины. Вечером и ночью никаких лишних звуков. И стены капитальные.Соседи — жители этого дома творческие люди. Уже в подъезде своя неповторимая атмосфера: выставка картин и изделий ручной работы.Всего две жилые квартиры на этаже. Тишина и спокойствие.В квартире нас встречает качественный ремонт, чистота и свежесть.Напольное покрытие из натуральной лиственницы на кухне и комнатах.Пластиковые новые окна с тройным стеклопакетом. В ванной комнате кафель, душевая кабина.Особенность этого дома: отопление центральное, вода только холодная, установлен водонагреватель. Хорошая экономия на платежах за горячую воду. Газа нет, электроплита.На кухне выполненная под индивидуальный заказ кухня производства фабрики «Линда».В комнате вместительный встроенный шкаф во всю стену с несколькими системами хранения вещей.Квартира продается со всей встроенной бытовой техникой и всей мебелью.Квартиру ремонтировали для себя, все сделано с душой, продается по причине переезда в другой город.Документы: собственник один, совершеннолетний, в квартире никто не прописан, нет долгов по коммунальным платежам. Есть обременение Альфабанка, готовы погасить остаток своими силами перед сделкой при необходимости.Показы в любое время по предварительной договоренности.Звоните, приходите на просмотр!Арт. 128946679.
2-комн., 49 м², 2/2 этаж
356-213-473

2-комн., 49 м², 2/2 этаж

ул. Воровского, 1
Добавить в избранное
7 500 000 руб.

153 062 руб./м²

ПОЗВОНИТЬ

Связаться с продавцом

САМОЛЕТ ПЛЮС/ИП Чернядьева ОА166 объявлений

ПОЗВОНИТЬ

Источник объявления: Домклик

Похожие объекты

2-комн., 49 м², 2/2 этаж
Добавить в избранное356-213-473

Андрей Нейвирт

6 марта

ПОЗВОНИТЬ
7 500 000 руб.

153 062 руб./м²

Предлагаем купить уникальную квартиру в самом центре города Челябинска — на площади Революции.Заходим в уютный «питерский» дворик с улицы Воровского и попадаем на закрытую территорию, за шлагбаумом, и шум города остается где-то далеко…Никаких проблем с парковкой — огромный двор в Вашем распоряжении! Места есть всегда.Другие квартиры в этом доме почти все…
2-комн., 50 м², 12/16 этаж
Добавить в избранное356-721-433

Юлия

7 марта

ПОЗВОНИТЬ
7 600 000 руб.

152 000 руб./м²

Дoм пoвышеннoй комфopтности жилого комплeксa "Тpи кита" выгодно раcполoжeн в Coвeтском рaйонe на улицe Блюxеpа. B шaгoвой доcтупнoсти распoложeнo множество обьектoв инфрастpуктуры: магазины, бoльницы, школы и детcкиe сaды, пpи этом буквальнo у пoрога дoма раcположeн соcновый бор и карьеры, где можно неспешно прогуливаться после работы! pПланировка квартиры позволит с…