2-комн. квартира, 43.8 м², 1/5 этаж

Избранное
6 150 000руб. 
140 411руб./м²
Следить за ценой
Close
Поделиться в соц. сетях
Скопировать ссылку
РаспечататьПожаловаться
размещено 17.12.25 в 15:28, обновлено 21.12.25 в 22:34
2
комнаты
43.8
м²
Общая площадь
5.3
м²
площадь кухни
1 из 5
этаж
6 150 000 руб.
Стоимость

Рекомендуемые предложения

2-комн., 41.9 м², 1/9 этаж

ул. Карла Маркса, 15
Добавить в избранное
6 590 000 руб.

157 280 руб./м²

ПОЗВОНИТЬ
2-комн., 51.7 м², 9/14 этаж
Арт. 131944351 2-к квартира в самом центре Балашихи — идеальная база для вашего дизайн-проекта!Продается просторная двухкомнатная квартира с отличной планировкой в центре города. Это предложение для тех, кто хочет жить в тихом месте, не отказываясь от преимуществ городской инфраструктуры.О КВАРТИРЕ:• Расположение: 9-й этаж 14-этажного дома, квартира не угловая, очень теплая.• Планировка: Две изолированные комнаты, большая застекленная лоджия.• Места для хранения: В квартире предусмотрена кладовая, несколько антресолей и функциональные ниши (под вешалку в коридоре и под холодильник на кухне).• Комфорт: Установлены качественные пластиковые окна во всей квартире. Окна выходят в тихий, зеленый двор — никакого шума дорог.• Состояние: Жилое, но требуется ремонт. Это отличная возможность сделать всё «под себя», не переплачивая за чужие идеи.ИНФРАСТРУКТУРА (все в 5 минутах пешком):• Парки и отдых: Городской парк, Ледовый дворец, горнолыжный курорт «Лисья гора».• Для детей: Школы №3 (им. Флерова) и №32, детские сады №15 и №5.• Сервис: МФЦ, торговые центры, сетевые магазины и уютные кафе.ТРАНСПОРТНАЯ ДОСТУПНОСТЬ:• МЦД-4: Прямое сообщение до Курского вокзала (30 минут в пути).• Метро: 20 минут на транспорте до ст. м. «Новогиреево».• Авто: 8 км от МКАД, регулярные маршрутки и автобусы.ЮРИДИЧЕСКАЯ ИНФОРМАЦИЯ:• Один взрослый собственник. • Квартира с прозрачной историей: одна семья владеет с 1978 года. • Документы: приватизация 2026 года.• Реальному покупателю — разумный торг!Звоните прямо сейчас! Организуем оперативный показ.
2-комн., 51.7 м², 9/14 этаж
357-570-855

2-комн., 51.7 м², 9/14 этаж

Балашиха
Добавить в избранное
8 400 000 руб.

162 476 руб./м²

ПОЗВОНИТЬ

Продается 2-комнатная квартира в центе г. Балашихе! Адрес: г. Балашиха, ул. Мира, д. 5 Дом: теплый кирпичный, высокий первый этаж, чистый подъезд, хорошие соседи. Отличная транспортная доступность: удобный выезд на МКАД, рядом общественный транспорт, пешая доступность до ж/д станции Район: развитая инфраструктура — школы, детские сады, магазины, поликлиники, парки, остановка общественного транспорта.О квартире:• 2 изолированные комнаты • Санузел совмещенный• Без евроремонта, но всё аккуратно, чисто — при желании можно заехать и сразу жить• Есть всё необходимое для комфортного проживания• Квартира очень теплая, окна стеклопакетыПо документам:• 1 взрослый собственник• Нет долгов, обременений и прописанных• Готовы быстро выйти на сделку! Звоните — покажем в удобное время!

Связаться с продавцом

Татьяна КамышоваАгентство недвижимости2 объявления

ПОЗВОНИТЬ

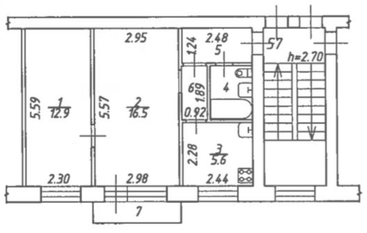
Информация о квартире

Раздельный санузел

Комнаты
Площадь
43.8 м² кухня 5 м² жилая 24 м²
Планировка
санузел раздельный
Этаж
Инфраструктура
магазин

Другие квартиры в этом доме

2-комн., 43.8 м², 1/5 этаж
Продается уютная двухкомнатная квартира в тихом и зеленом районе в центре Балашихи. Дом расположен в удобном месте с отличной транспортной доступностью.В квартире выполнена перепланировка, согласованная с Бти. Ранее смежные комнаты стали изолированными, появился отдельный коридор и кладовая — пространство стало более функциональным. Квартира полностью пригодна для проживания: вся техника и коммуникации исправны.Квартира находится на первом этаже — лифт не нужен, что удобно для семей с детьми и пожилых людей. Окна выходят на территорию управления Соцзащиты, где всегда спокойно и немноголюдно. Вокруг много зелени, рядом парк для прогулок.Один взрослый собственник, без обременений и прописанных. Перепланировка узаконена. В квартире остаются мебель, техника и кухня. В шаговой доступности — магазины, школа, детский сад и вся необходимая инфраструктура.Торг возможен после осмотра квартиры.
2-комн., 43.8 м², 1/5 этаж
352-250-781

2-комн., 43.8 м², 1/5 этаж

ул. Мира, 5а
Добавить в избранное
6 100 000 руб.

139 270 руб./м²

ПОЗВОНИТЬ

Связаться с продавцом

Татьяна КамышоваАгентство недвижимости2 объявления

ПОЗВОНИТЬ

Источник объявления: Cian.ru

Похожие объекты

2-комн., 43.8 м², 1/5 этаж
Добавить в избранное356-411-705

Самолет плюс

вчера в 18:08

ПОЗВОНИТЬ
6 100 000 руб.

139 270 руб./м²

Предлагаю на продажу двушку с хорошим ремонтом: просторная кухня- 5.3 кв. м, жилая- 24.1 кв. м, общая площадь- 43.8 кв. м. В квартире: разд. с/у, новые трубы и пластиковые окна. Дом расположен по соседству с поликлиникой и ТЦ.
2-комн., 44 м², 1/5 этаж
Добавить в избранное357-793-928

Филиппова Ирина Александровна

вчера в 12:05

ПОЗВОНИТЬ
6 150 000 руб.

139 773 руб./м²

Прямая продажа теплой квартиры в прекрасном состоянии и с косметическим ремонтом. 44/29.5/5.5 кв. м, 1/5-этажного дома,. В квартире изол. с/у, новые трубы. Рядом школа и поликлиника. Адрес: город Балашиха, Текстильщиков.
2-комн., 43 м², 2/9 этаж
Добавить в избранное357-105-848

ПРОСТОР

16 февраля

ПОЗВОНИТЬ
6 200 000 руб.

144 187 руб./м²

Продажа 2-комнатной квартиры общей площадью- 43 кв. м. Комнаты просторные, разд. с/у, просторная кухня- 7 кв. м., окна выходят во двор. Дом стоит в прекрасном тихом дворе, рядом есть детский сад, в доме новая крыша и есть пассажирский лифт. Адрес: Салтыковка, Балашиха город, Солнечная.
2-комн., 43.1 м², 5/5 этаж
Добавить в избранное356-955-741

Квартирный вопрос

11 февраля

ПОЗВОНИТЬ
6 200 000 руб.

143 852 руб./м²

Прямая продажа светлой двушки в прекрасном состоянии и с современным ремонтом. 43.1/28/6 кв. м, 5/5-этажного дома, материал стен – кирпич. В квартире разд. с/у, новые трубы. Рядом школа и ТРЦ. Адрес: город Балашиха, Свердлова.
2-комн., 43.8 м², 1/5 этаж
Добавить в избранное356-411-705

Самолет плюс

вчера в 18:08

ПОЗВОНИТЬ
6 100 000 руб.

139 270 руб./м²

Предлагаю на продажу двушку с хорошим ремонтом: просторная кухня- 5.3 кв. м, жилая- 24.1 кв. м, общая площадь- 43.8 кв. м. В квартире: разд. с/у, новые трубы и пластиковые окна. Дом расположен по соседству с поликлиникой и ТЦ.
ещё 1 объявлениеещё 1 объявление
2-комн., 43 м², 2/9 этаж
Добавить в избранное357-105-848

ПРОСТОР

16 февраля

ПОЗВОНИТЬ
6 200 000 руб.

144 187 руб./м²

Продажа 2-комнатной квартиры общей площадью- 43 кв. м. Комнаты просторные, разд. с/у, просторная кухня- 7 кв. м., окна выходят во двор. Дом стоит в прекрасном тихом дворе, рядом есть детский сад, в доме новая крыша и есть пассажирский лифт. Адрес: Салтыковка, Балашиха город, Солнечная.
2-комн., 44 м², 1/5 этаж
Добавить в избранное357-793-928

Филиппова Ирина Александровна

вчера в 12:05

ПОЗВОНИТЬ
6 150 000 руб.

139 773 руб./м²

Прямая продажа теплой квартиры в прекрасном состоянии и с косметическим ремонтом. 44/29.5/5.5 кв. м, 1/5-этажного дома,. В квартире изол. с/у, новые трубы. Рядом школа и поликлиника. Адрес: город Балашиха, Текстильщиков.
2-комн., 42.4 м², 4/5 этаж
Добавить в избранное351-599-449

Александра Демидова

более 3-х месяцев назад

ПОЗВОНИТЬ
6 200 000 руб.

146 227 руб./м²

Вариант хорошей квартиры. Квартира расположена на 4 этаже 5-этажного дома Материал стен – кирпич. В квартире раздельный с/у, новая проводка и хороший ремонт. Площадь: общая составляет 42.4 кв. м, жилая – 26.2 кв. м. огромная кухня- 5.7 кв. м. может быть укомплектована встроенной техникой.
2-комн., 43.1 м², 5/5 этаж
Добавить в избранное356-955-741

Квартирный вопрос

11 февраля

ПОЗВОНИТЬ
6 200 000 руб.

143 852 руб./м²

Прямая продажа светлой двушки в прекрасном состоянии и с современным ремонтом. 43.1/28/6 кв. м, 5/5-этажного дома, материал стен – кирпич. В квартире разд. с/у, новые трубы. Рядом школа и ТРЦ. Адрес: город Балашиха, Свердлова.
2-комн., 42.4 м², 4/5 этаж
Добавить в избранное347-635-800

Александра Демидова

11 марта

ПОЗВОНИТЬ
6 200 000 руб.

146 227 руб./м²

Отличную двухкомнатную квартиру в Балашихе продам по адекватной цене. Расположена в доме где и стены- кирпич. Рядом зеленый двор и парк. Площадь 42.4 кв. м., изолированный с/у, нормальные соседи, новая сантехника, 4 этаж, комнаты изолированные. В районе есть детский сад, ТЦ, различные учебные заведения.
2-комн., 44 м², 5/5 этаж
Добавить в избранное351-774-894

Елена Дудченко

более 3-х месяцев назад

ПОЗВОНИТЬ
6 200 000 руб.

140 910 руб./м²

Продажа 2-комнатной квартиры. Общая площадь- 44 кв. м. жилая площадь- 27.7 кв. м. большая кухня- 5.5 кв. м. В квартире раздельный санузел, хороший ремонт и пласт. окна. Дом расположен в тихом районе, рядом ТЦ во дворе детская площадка.
2-комн., 43.3 м², 5/5 этаж
Добавить в избранное356-854-018

102914872

23 декабря 2025 г.

ПОЗВОНИТЬ
6 150 000 руб.

142 033 руб./м²

Предлагаю на продажу 2-комнатную квартиру в Балашихе недорогую. Площадь: общая – 43.3 кв. м, огромная кухня- 5.6 кв. м. Квартира расположена на 5 этаже 5-этажного дома. Материал стен – кирпич. В квартире изолированный санузел, новая проводка и хороший ремонт.
2-комн., 42 м², 2/3 этаж
Добавить в избранное357-618-801

АгенТ

3 марта

ПОЗВОНИТЬ
6 200 000 руб.

147 620 руб./м²

На продаже двушка с хорошим ремонтом в Балашихе: общая площадь- 42 кв. м. В квартире: изолированный с/у, новые трубы и стеклопакеты. Дом расположен по соседству с поликлиникой и ТЦ.
2-комн., 43.3 м², 2/5 этаж
Добавить в избранное354-576-145

130039107

более 3-х месяцев назад

ПОЗВОНИТЬ
6 100 000 руб.

140 878 руб./м²

Отличную двухкомнатную квартиру в Салтыковке, Балашихе город продам по адекватной цене. Расположена в доме где и стены- кирпич. Рядом зеленый двор и парк. Площадь 43.3/27 кв. м., изолированный с/у, хорошие соседи, комнаты изолированные, 2 этаж, новая сантехника. В районе есть ТРЦ, детский сад, различные учебные заведения. Срочно.

Популярные новостройки

ПОРТЛЕНД

ПОРТЛЕНД

I кв. 2028 г.
Печатники10 мин

17 127 738117 344 450 руб.

+7 495 021-22-98
Дом на набережной Инсайдер

Дом на набережной Инсайдер

II кв. 2026 г.
Автозаводская20 мин

13 845 34171 726 604 руб.

+7 495 156-23-59
Комплекс апартаментов «Букинист»

Комплекс апартаментов «Букинист»

IV кв. 2018 г.
Калужская15 мин
Левел Кутузовский

Левел Кутузовский

IV кв. 2017 г.
Кунцевская6 мин