
Жилой поселок таунхаусов элитного класса с собственным парком
от 70 тыс. руб. за м²
| Название | Площадь | Участок | Цена общая |
|---|---|---|---|
| Трехэтажный таунхаус | от 291 м² | от 2.7 сот. | от 70 млн |
| Трехэтажный таунхаус | от 364 м² | от 5 сот. | от 100 млн |
Прайс-лист
Новорижское ш., 23 км
Московская область, городской округ Истра, д. Писково, улица Парковая
Или оставьте контакты,
и мы вышлем Вам актуальные цены и акции:
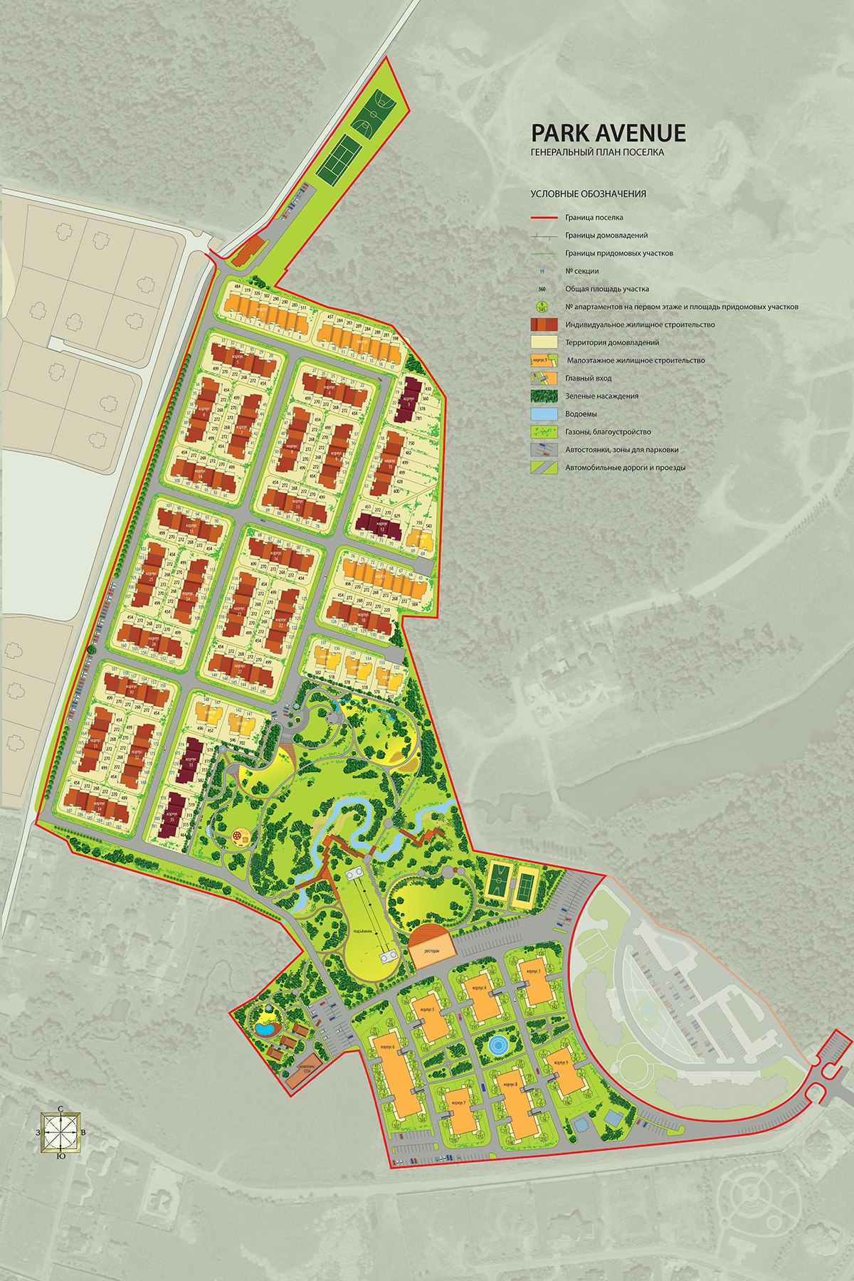
Park Avenue - первый проект Villagio Estate, выполненный в рамках малоэтажного загородного строительства. Поселок уютно расположился в Истринском районе на Новорижском шоссе – одном из самых престижных в Подмосковье.
Участок, на котором возведен поселок, разделяет река Беляна на 2 зоны площадью 6 га и 11,5 га. Во второй зоне расположено 184 современных таунхауса площадью 294-361 кв.м. с придомовыми участками от 2,7 до 7,5 соток..
Поселок обеспечен центральными инженерными коммуникациями: газоснабжением и установленными котлами Buderus в каждом таунхаусе, а также электричеством, водоснабжением и канализацией.
Элитный
Комплекс сдан
3
Монолит-кирпич
Гостевой
Концепция поселка Park Avenue выдержана в стиле, присущем известному архитектору Фрэнку Ллойду Райту. Малоэтажные дома с квартирами и таунхаусы полностью построены из кирпича. Для их возведения использовались конструкции с монолитными перекрытиями, а облицовка выполнена из дерева, травертина и камня. Таунхаусы в Park Avenue можно назвать уникальным проектом, поскольку на сегодняшний день по своему классу и размеру жилых площадей они не имеют аналогов ни на Новорижском шоссе, ни в ближайших Подмосковных поселках.
Элитный поселок Park Avenue находится под круглосуточной охраной. Контрольно-пропускной пункт исключает возможность появления нежелательных гостей, а система видеонаблюдения, установленная в поселке, обеспечивает безопасность его жителей в любое время суток. Вы можете быть спокойны – и детские прогулки, и отдых на лоне природы старшего поколения будут проходить под незримой и неназойливой охраной.
В Park Avenue предлагаются к продаже готовые таунхаусы и комфортабельные квартиры от застройщика. Эти современные форматы совмещают достоинства загородных коттеджей и городских квартир. Просторные помещения с высокими, более 3 м, потолками, свободной планировкой, большими окнами и открытыми площадками для отдыха делают поселок Park Avenue на престижном Новорижском направлении отличным вариантом загородной недвижимости для ценителей комфорта и стиля.
Поселок таунхаусов и квартал с квартирами Парк Авеню – это подлинное воплощение нового формата стильной и комфортной жизни в Подмосковье, сравнимого с американскими и европейскими образцами. На участках элитных домов выполнено озеленение, широкие улицы вымощены брусчаткой, бульвары и фасады таунхаусов украшены дизайнерской подсветкой.
Для комфортного отдыха жителей имеется живописный парк общей площадью 5 га с прогулочными маршрутами, детскими и спортивными площадками, беседками и ротондами. Небольшая речка на территории парка придает пейзажу неповторимое своеобразие. Ландшафтный дизайн поселка является частью общей архитектурно-планировочной концепции Park Avenue.
Поселок Park Avenue находится в Истринском районе Московской области, в 23 км от МКАД по Новорижскому шоссе. В этом регионе сосредоточено множество загородных поселков, в том числе класса de luxe, и создана развитая сеть инфраструктурных объектов, расположенных на всем протяжении трассы.
Новая Рига — скоростная магистраль с высококачественным дорожным покрытием. Благодаря отсутствию светофоров и постов ДПС от Москвы до поселка можно добраться за 30-40 минут.
Возведенный на удалении от оживленной проезжей части, поселок Park Avenue – очень тихое и спокойное место. Ничто не помешает жителям таунхаусов и квартир наслаждаться долгими загородными прогулками и чистым лесным воздухом.
Московская область, городской округ Истра, д. Писково, улица Парковая
Поселок «Park Avenue» расположен в Истринском районе Московской области, на 23-м км Новорижского шоссе.
Получить схему проезда
на мобильный телефон
Недалеко от КП находятся известные и прекрасно зарекомендовавшие себя учреждения школьного образования: Ломоносовская школа «Интек», Павловская гимназия, Школа права и экономики.
В соседних поселках, с которыми граничит Park Avenue, работают Kinders Town, Зеленая Башня, а также детский клуб "Робин Гуд". В окрестностях также находятся муниципальные детские сады.
Вдоль Новорижского шоссе расположены частные мед. центры Чайка, Кантри-Мед и PremierMedica. В соседних населенных пунктах находятся государственные поликлиники и больницы.
На берегу живописного озера оборудованы пляж с комфортными лежаками и игровая площадка для летних видов спорта. Зимой в поселке заливается каток. Кроме того, в зимний сезон здесь будут оборудованы небольшие склоны для катания на горных лыжах, а также подъемник, чтобы юные жители поселка смогли освоить этот популярный вид спорта.
В окрестностях поселка доступны различные объекты торговой инфраструктуры: магазины и супермаркеты «Азбука вкуса», «Алые паруса» и «Перекрёсток».
В соседних КП и ближайших поселках есть множество кафе и ресторанов. Там жильцы могут попробовать разнообразное меню и побыть в приятной атмосфере.
Компания «Villagio Estate» создавалась, как элитное подразделение Корпорации ИНКОМ для строительства элитных коттеджей на Новорижском шоссе. Устойчивый спрос на малоэтажное жилищное строительство высокого класса дополнил линейку предложений компании таунхаусами и апартаментами. В активе Villagio Estate представлены как уже жилые поселки «Миллениум Парк», «Монтевиль», «Мэдисон Парк» и «Парк Авеню», так и проекты в стадии активного строительства: Парк Фонте и Футуро Парк.
Компания «Villagio Estate»
Любая информация, представленная на данном сайте, носит исключительно информационный характер и ни при каких условиях не является публичной офертой, определяемой положениями статьи 437 ГК РФ.







291 M²общая площадь2.7 соткиплощадь участкаучасток3этажаСерединаномер таунхаусатаунхаус
364 M²общая площадь4 соткиплощадь участкаучасток3этажаУголномер таунхаусатаунхаус